博亚体育app入口-免费下载
|
|
| 呼吸阀是固定在储罐顶上的通风装置,以保证罐内压力的正常状态,防止罐内超压或真空使储罐遭受损坏,也可减少罐内液体挥发损失。
博亚体育app入口南通工厂根据中国《石油化工设计防火规范》(GB50160-92)的规定:“甲、乙类液体的固定顶罐,应设阻火器和呼吸阀”,日本大野公司研制开发DB型系列新产品,具有规格齐全,结构紧凑、重量轻、通风量大、泄露小等优点。产品有单呼阀、单吸阀、阻火呼吸阀、防爆呼吸阀,各种结构型式均可与阻火器组合构造,也可配制所需的接管。 |
|
| 汽油、煤油、柴油、芳烃、硫、空气等,或其他石油化工物料,阻火类别的选用根据“HGJ21-89”进行。 |
|
呼出压力:B、+980Pa C、+1750Pa D、+4KPa E、+18KPa
吸入压力:B、-295Pa C、-295Pa D、-0.5KPa
(操作压力指标也可以由用户指定)
使用环境温度:-30°C -60°C |
| |
|
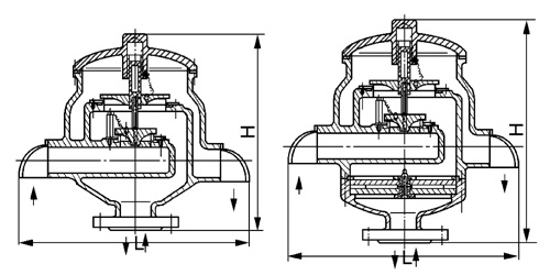
DB1型呼吸阀
DN50-400 |
DAB1型阻火呼吸阀
DN50-400 |
|
DN |
50 |
80 |
100 |
150 |
200 |
250 |
300 |
400 |
|
H
|
280 |
430 |
430 |
530 |
630 |
740 |
820 |
940 |
|
350 |
500 |
500 |
600 |
700 |
820 |
900 |
1020 |
|
L |
300 |
450 |
450 |
650 |
850 |
1000 |
1100 |
1250 |
|
|
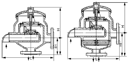
DB2型带双接管呼吸阀
DN50-250 |
DAB2型带双接管阻火呼吸阀
DN50-250 |
|
DN |
50 |
80 |
100 |
150 |
200 |
250 |
|
H
|
280 |
430 |
430 |
530 |
630 |
740 |
|
350 |
500 |
500 |
600 |
700 |
820 |
|
H1
|
110 |
180 |
180 |
220 |
260 |
320 |
|
180 |
250 |
250 |
290 |
330 |
400 |
|
L |
320 |
450 |
450 |
620 |
750 |
850 |
|
|
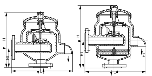
DB3型带吸入接管呼吸阀
DN50-250 |
DAB3型带吸入接管阻火呼吸阀
DN50-250 |
| DN |
50 |
80 |
100 |
150 |
200 |
250 |
| H
|
280 |
430 |
430 |
530 |
630 |
740 |
| 350 |
500 |
500 |
600 |
700 |
820 |
| H1
|
110 |
180 |
180 |
220 |
260 |
320 |
| 180 |
250 |
250 |
290 |
330 |
400 |
| L |
310 |
450 |
450 |
635 |
800 |
950 |
|
|
DB4型带呼出接管呼吸阀
DN50-250 |
DAB4型带呼出接管阻火呼吸阀
DN50-250 |
|
| |