过滤器,混合器-日本独资·博亚体育app入口!
HOME | EMAIL |  MAP
 
乳化机-博亚体育app入口产品展示
 
博亚体育app入口
博亚体育app入口
博亚体育app入口
博亚体育app入口
博亚体育app入口
博亚体育app入口
博亚体育app入口
博亚体育app入口
博亚体育app入口
 
     
  混合机_混合器_乳化机_过滤器_
WDS型沉降式分离系统
产品特性:

  含油废水是炼油加工及储运等过程中排水量最大的一种废水,水中主要含有原油、成品油、润滑油及少量的有机溶剂和催化剂等。含油污水如处理不好,排入自然水体后酒会在水面形成油膜,隔绝大气与水面,破坏水体的复氧条件,使水质发黑发臭,局部地破坏生态平衡。因此当废水需要排入水体时,以内感处理到允许排入水体的程度,以降低或消除其对水体水质的不利影响。
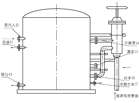
  沉降式油水分离器分六个区,即为:进水区、集油区、加热区、出水区、集泥区。主要有罐体,进、出水管,蒸气管,出油槽,液位调节组成。
  当含油污水经特殊设计的分离器进入罐体上部均匀流入油水分离区后,利用油水比重差,使油、清水、污泥分别从各个排放区排出,从而达到油水分离和净化水质的目的。

应用领域 :

油田含油污水处理和油田开采出水预处理。
炼油厂含硫污水汽提前预处理。
原油电脱盐装置排水预处理。
炼油厂装置排水除油和炼油废水生化前预处理。
油码头、船舶压沧水除油净化和油库切水预处理。
炼油厂各种含油污水的集中处理。

主要性能及优点

安全高效,操作自动化。
无气味泄露,无二次污染。
进出水方式合理,无冲击和不均匀现象,油水分离效果高,污泥沉降平稳。
借助开关电路和电动阀门来控制排污、排水阀门的关闭可开启,达到自动排污和自动排水的目的,设备操作全部采用微机控制。

工程应用实例

哈尔滨炼油厂油品脱水
处理量:50-170m3/h
压力降:0.3-0.4MPa
处理前含水量:117-5000mg/L
处理后含水量:<100 mg/L
自动排水,工作稳定。
南阳油田炼油厂
催化车间酸性油污水处理
处理量:12m3/h
压力降:0.3-0.4MPa
处理前含水量:2400mg/L(乳化)
处理后含水量:<100 mg/L
使气提塔操作一直保持稳定状态,酸性气和净化水产品合格率得到大幅度提高,使焚烧炉炉膛温度从原来900多摄氏度以下,有效地避免了酸性气带油在焚烧炉发生的燃爆现象。

 
 
 
博亚体育app入口

COPYRIGHT © 2004 日本独资·博亚体育app入口 版权所有 苏ICP备05009106号

博亚体育app入口主要产品混合机_混合器_乳化机_搅拌机_分散机_阻火器_呼吸阀_输送机