| 蓝式过滤器 |
| (DGL型) |
|
| 蓝式过滤器是工业生产中不可缺少的管道附件,安装在管道上能滤除流体中的固体杂质,保证管线设备系统正常地运行,可使流体更加纯净,获得理想的工业产品;使用一段时间后打开上盖取出象提蓝子式的过滤网,一经洗刷即可以恢复如新。因此,在石油、化工、制药、食品等行业中得到了广泛的应用,深受用户的青睐。 |
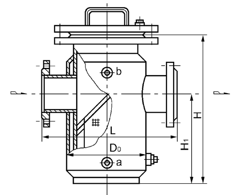
| 1、蓝式法兰连接直通平底式过滤器(DGLI-F型) |
| 2、蓝式法兰连接重叠型直通平底式过滤器(DGLMI-F型) |
|
| 公称直径
DN |
结构尺寸(PN≤5.0MPa)mm
|
管塞
N
|
L |
H |
H1 |
D0 |
25 |
180 |
260 |
160 |
Φ76 |
Rc3/4 |
32 |
200 |
270 |
160 |
Φ76 |
40 |
260 |
300 |
170 |
Φ108 |
50 |
260 |
300 |
170 |
Φ108 |
65 |
330 |
360 |
210 |
Φ108 |
80 |
340 |
400 |
250 |
Φ108 |
100 |
400 |
470 |
300 |
Φ219 |
125 |
480 |
550 |
360 |
Φ273 |
150 |
500 |
630 |
420 |
Φ273 |
200 |
560 |
780 |
530 |
Φ325 |
250 |
660 |
930 |
640 |
Φ426 |
M20x1.5 |
300 |
750 |
1200 |
840 |
Φ476 |
|
| 3、蓝式带夹套型法兰连接直通平底式过滤器(DGLJI-F型) |
|
| 公称直径DN |
安装尺寸MM |
夹 套 |
管塞
N |
| L |
H |
H1 |
蒸汽
压力 |
D0 |
进口a |
出口b |
| 25 |
215 |
350 |
180 |
≤0.6MPa |
Φ108 |
G3/4 |
G3/4 |
Rc3/4 |
| 32 |
235 |
360 |
180 |
Φ108 |
| 40 |
300 |
430 |
210 |
Φ159 |
| 50 |
300 |
430 |
210 |
Φ159 |
| 65 |
450 |
490 |
250 |
Φ159 |
| 80 |
460 |
530 |
290 |
Φ273 |
DN20 |
DN20 |
| 100 |
500 |
600 |
345 |
Φ325 |
| 125 |
580 |
700 |
410 |
Φ377 |
DN25 |
DN25 |
| 150 |
600 |
780 |
470 |
Φ377 |
| 200 |
660 |
930 |
580 |
Φ426 |
|
| 4、蓝式法兰连接直通对头式过滤器(DGLII-F型) |
| 5、蓝式法兰连接重叠型直通对头式过滤器(DGLMII-F型) |
|
| 公称直径
DN |
公称压力
PN |
结构尺寸 mm |
管塞
N |
|
L |
H |
H1 |
H2 |
D0 |
D0 |
D0 |
|
200 |
≤5.0MPa |
800 |
1680 |
300 |
1310 |
Φ500 |
Φ420 |
3-Φ20 |
Rc1" |
|
250 |
840 |
1850 |
300 |
1450 |
Φ550 |
Φ450 |
3-Φ20 |
Rc1" |
|
300 |
960 |
2050 |
300 |
1610 |
Φ600 |
Φ520 |
3-Φ24 |
Rc1" |
|
350 |
1060 |
2210 |
300 |
1740 |
Φ700 |
Φ620 |
3-Φ24 |
Rc1" |
|
| 6、蓝式法兰连接高低接管平底式过滤器(DGLIII-F型) |
| 7、蓝式法兰连接重叠型高低接管平底式过滤器(DGLMIII-F型) |
|
| 公称直径
DN |
公称压力
PN |
结构尺寸 mm |
管塞
N |
| L |
H |
H1 |
H2 |
D0 |
| 25 |
≤5.0MPa |
180 |
280 |
110 |
180 |
Φ76 |
Rc3/4 |
| 32 |
200 |
285 |
110 |
180 |
Φ76 |
| 40 |
260 |
340 |
120 |
220 |
Φ108 |
| 50 |
260 |
340 |
120 |
220 |
Φ108 |
| 65 |
330 |
400 |
160 |
270 |
Φ133 |
| 80 |
340 |
460 |
180 |
320 |
Φ159 |
| 100 |
400 |
550 |
200 |
390 |
Φ219 |
| 125 |
480 |
630 |
260 |
450 |
Φ273 |
| 150 |
500 |
720 |
310 |
530 |
Φ273 |
| 200 |
560 |
900 |
390 |
670 |
Φ325 |
| 250 |
660 |
1070 |
480 |
800 |
Φ426 |
M20x1.5 |
| 300 |
750 |
1360 |
640 |
1040 |
Φ478 |
|
| |